Description
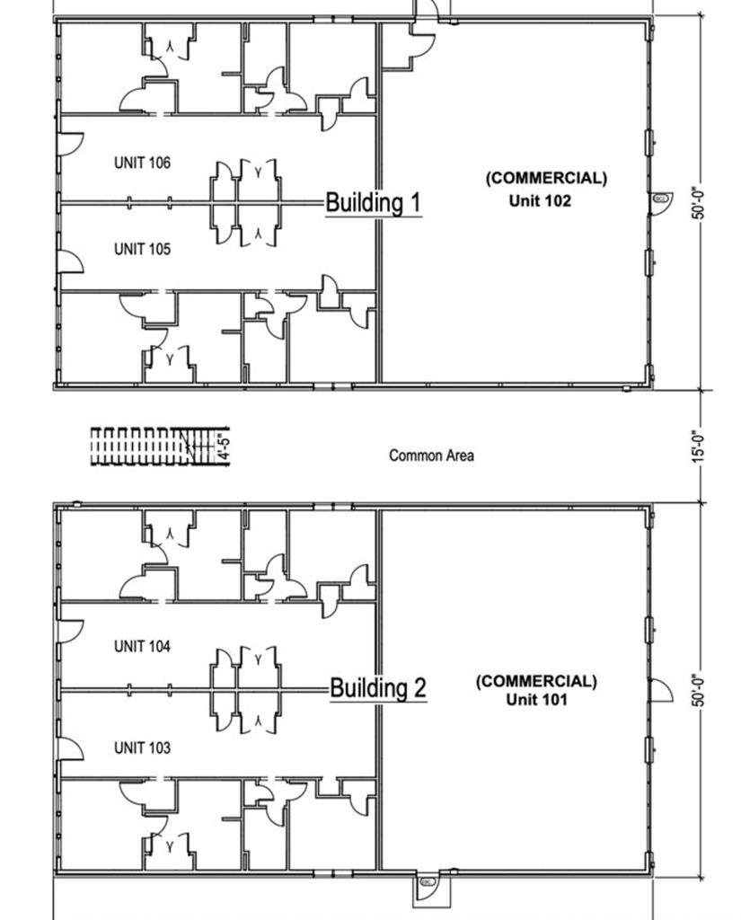
COMMERCIAL SPACE AVAILABLE!! The Concourse is one of Oxfords newest structures and includes 20 residential units between 3 floors and 2 commercial spaces on the lower floor. Unit 102 is approximately 1750 sf and is being offered with raw interior and can be finished by developer for an additional cost or by builder of choice. Listed under appraisal, this space offers a beautiful commercial storefront, parking, and awesome views of the UOX runway / hangars. Only 1 mile to campus.
-
0BEDS
-
N/AACRES
-
0BATHS
-
01/2 BATHS
-
1,750SQFT
-
$342$/SQFT
Description
COMMERCIAL SPACE AVAILABLE!! The Concourse is one of Oxfords newest structures and includes 20 residential units between 3 floors and 2 commercial spaces on the lower floor. Unit 102 is approximately 1750 sf and is being offered with raw interior and can be finished by developer for an additional cost or by builder of choice. Listed under appraisal, this space offers a beautiful commercial storefront, parking, and awesome views of the UOX runway / hangars. Only 1 mile to campus.
© 2026 North Central Mississippi Board of REALTORS®. All rights reserved. IDX information is provided exclusively for consumers' personal, non-commercial use and may not be used for any purpose other than to identify prospective properties consumers may be interested in purchasing. Information is deemed reliable but is not guaranteed accurate by the MLS or Oxford Property Group. Data last updated: 2026-03-13T23:55:26.627
